ご利用にあたっての注意事項

  • 宅地建物取引業法の規定により、ご契約時に仲介業者へ仲介手数料の支払いが別途必要となります。手数料の額については仲介業者へお問い合わせください。
  • 市が提供する物件情報は一部分であり、物件の詳細情報等については、利用希望者ご自身がしっかり確認してから契約して下さい。
  • 市は必要に応じて情報提供や連絡調整を行いますが、物件に関する交渉、契約その他の仲介行為には関与せず、かつ一切の責任を負いません。

登録No.409 【売買】 古川町 市街地

※飛騨市は国内有数の豪雪地帯でもあり、同じ市内でも地区によって地域の付き合い方やルールが異なります。
お住まい探しとともに移住をご検討の場合は
地域の情報収集・移住先での暮らしについて「飛騨市移住支援センター(TEL:0577-62-8904)」への相談を是非ともご活用ください。

外観
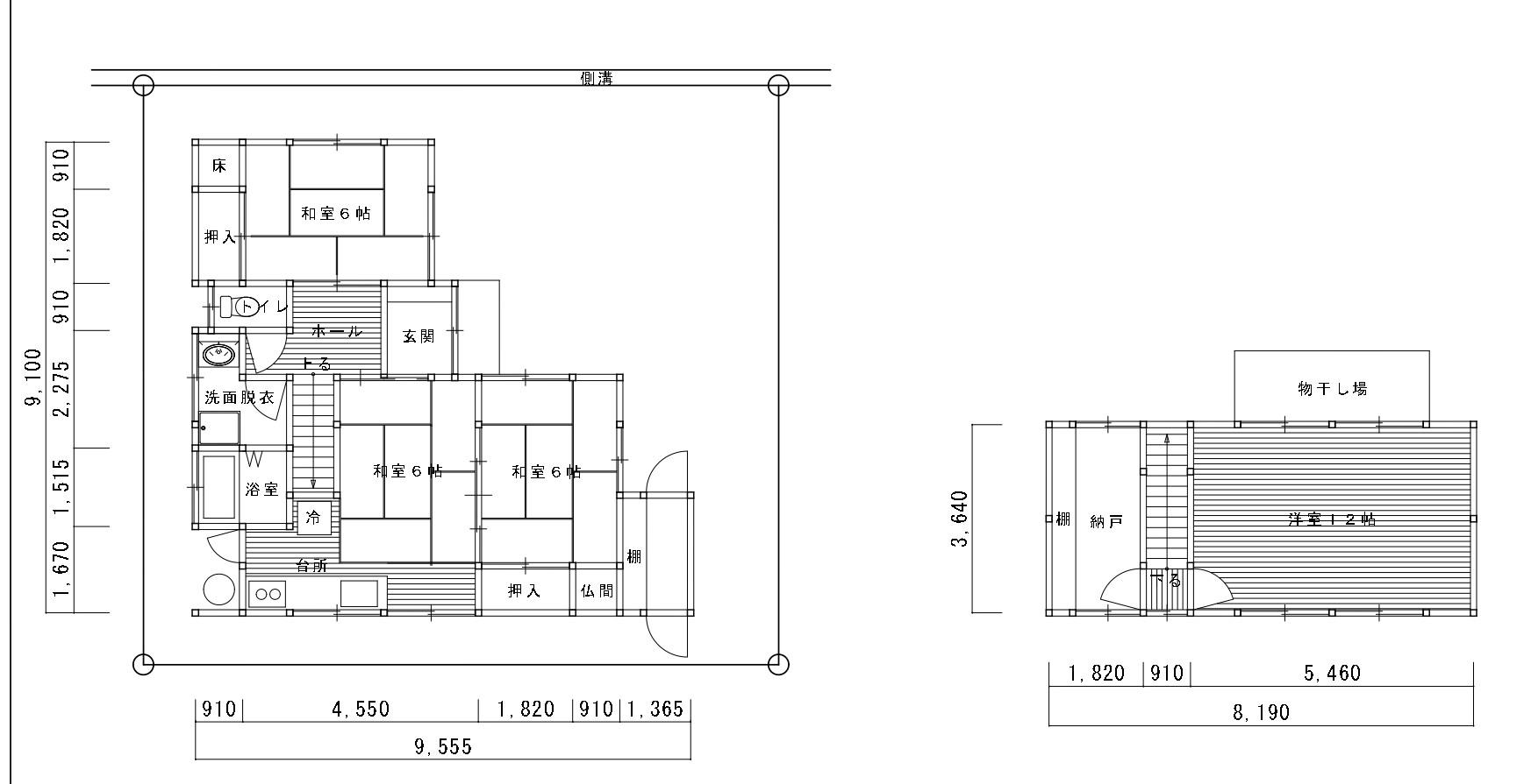
間取り図
トイレ
洋室
和室
風呂
玄関
和室②
洗面
< >

登録日 2026年3月18日

住所地飛騨市 古川町 上気多2251番33
価格 売買 450 万円
賃貸 - 円/月
敷金 - ヶ月 礼金 - ヶ月
構造木造 建築年平成5年(1993年)
建物面積80.00㎡ 敷地面積121.59㎡
建ぺい率70% 容積率200%
補修要否不要 補修費用
設備状況等
電気引き込み済 駐車場有(2台分)
ガスプロパン 車庫
風呂灯油
水道上水道 菜園
下水道下水道、浄化槽 物置き
トイレ水洗 町内会24区
テレビ受信 ペット連れ
主要施設等への距離
JR高山線 飛騨古川駅 約1.2㎞ 保育園宮城保育園 約2.0km
バス停吉城高校口 約0.4㎞ 小学校古川小学校 約1.4㎞
市役所飛騨市役所本庁 約1.0㎞ 中学校古川中学校 約2.6㎞
病院古川病院 約1.5㎞ 温泉飛騨古川桃源郷温泉 ぬく森の湯すぱ~ふる 約10㎞
消防署古川消防署 約2.0㎞ 食料品店ママショップうえの 約1.5㎞
警察署飛騨警察署 約1.9㎞ ホームセンタージャンボあらき古川店 約2.6㎞
金融機関飛騨農協 古川支店 約1.2㎞ コンビニファミリーマート 飛騨古川新栄店 約1.3㎞
特記事項 物件PR等
物件アクセスマップ仲介業者株式会社 匠和組
飛騨市古川町末広町1-15
TEL 0577-73-2222
FAX 0577-73-2232
http://shouwagumi.com/